Eladó családi ház Újszász 69 990 000 Ft

Leírás

A CasaNetWork Ingatlanhálózat kínálatában eladó épülő ikerházak Újszászon! 
Az ingatlan hirdetési azonosítója: 174602304

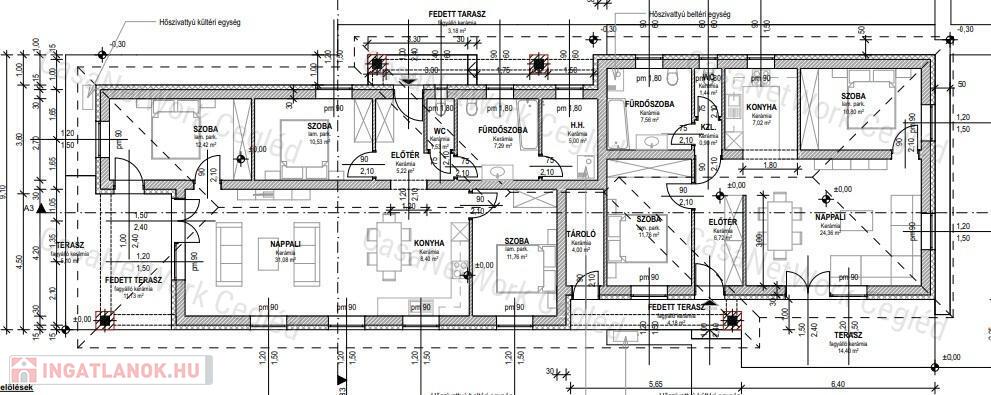
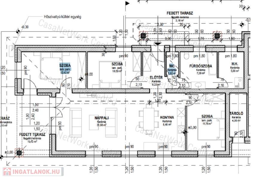
A hirdetett lakás: A. lakás: fűtött lakótér: 98+11,13 nm terasz

A ház modern technológiával, kiváló minőségű, minősített anyagokból készül: 

- falazata könnyűszerkezetes, fa szerkezetű. 15 cm-es fal, 15 cm hőszigeteléssel. Belső válaszfalak 10 cm vastagságúak. Így falazat kiváló hőszigetelő képességekkel rendelkezik, így télen-nyáron komfortos hőmérsékletet biztosít. A nyílászárók hő- és hangszigetelő műanyag ablakok, amelyek fokozzák az energiahatékonyságot, és kellemes belső klímát teremtenek.

Az ikerházakhoz saját kertrész és autóbeálló tartozik.

A fűtésről hőszivattyús fűtés gondoskodik padlófűtéssel. A nyári hőséget lakásonként 1 db inverteres klímaberendezés teszi elviselhetővé.

Ez az otthon minden műszaki és kényelmi igényt kielégít, amit a modern családi élet megkövetel.

Főbb jellemzők:

  • Tágas belső tér: 2 szoba, nappali-konyha, fürdőszoba+Wc, külön WC, háztartási helyiség, előtér és terasz.

  • Minőségi burkolatok: Laminált parketta melegburkolatként, választható mintázattal. Hidegburkolat: padlólap, legfeljebb 6.000 Ft/m² értékben.

  • Modern nyílászárók: Műanyag ablakok hő- és hangszigetelő, 3 rétegű üvegezéssel, erkélyajtók – a lakás szellőztetése a tulajdonos feladata.

  • Felszerelt fürdő és konyha: Kád vagy tusoló, kézmosó a fürdőben, wc

  • Korszerű fűtési rendszer: hőszivattyús fűtés, padlófűtés és radiátoros fűtés kombinációja.

  • Klíma: Inverteres klímaberendezés a kellemes nyári hőmérsékletért.

  • Biztonságos bejárat: többpontos zárral ellátott biztonsági ajtó.

  • Energetikai besorolása: A++

Műszaki adatok:

  • Válaszfalak: 10 cm-es falazat 

  • Tető: Azzurro betoncserép

  • Közművek: Gáz, víz, villany, csatorna

Várható átadás: 2026 év vége
Az ingatlan műszaki tervei alapján hirdetjük meg. Kérjük, vegye figyelembe, hogy a használatbavételi engedély kiadását követően kisebb m²-eltérések előfordulhatnak.

Amennyiben a CasaNetWork Cegléd által kínált, 174602302 azonosítószámú ikerház, vagy bármely más ingatlan felkeltette érdeklődését, keressen bizalommal a megadott telefonszámon!
Felhívjuk figyelmét, hogy a hirdetésben szereplő adatok a megbízótól származnak, azok pontosságáért felelősséget nem vállalunk.

Ügyfeleink részére díjmentes, bankfüggetlen hitelügyintézést biztosítunk! A 3%-os lakáshitelek elérhetőek! 

CasaNetWork – Ingatlanban otthon vagyunk.

Családi ház részletei

Ár: 69 990 000 Ft
Méret: 100 négyzetméter
Azonosító: 11614643
Irodai azonosító: 174602304
Telek: 300 négyzetméter
Ingatlan állapota: Kitűnő
Jelleg: ikerház
Építőanyag: Könnyűszerkezetes
Komfort fokozat: Összkomfort
Bútorozott: Nem bútorozott
Egész szobák: 4